E271-4F:事務所 不二川ビル
| 賃料 | 17.05万円 |
|---|---|
| 共益費・管理費 | 11,000円 |
| 坪賃料 | 15,349円 |
| 所在地 | 新宿区新宿2丁目 |
| 交通 | 都営新宿線 新宿三丁目まで 徒歩4分 丸ノ内線 新宿御苑前まで 徒歩4分 総武中央線 新宿まで 徒歩10分 |
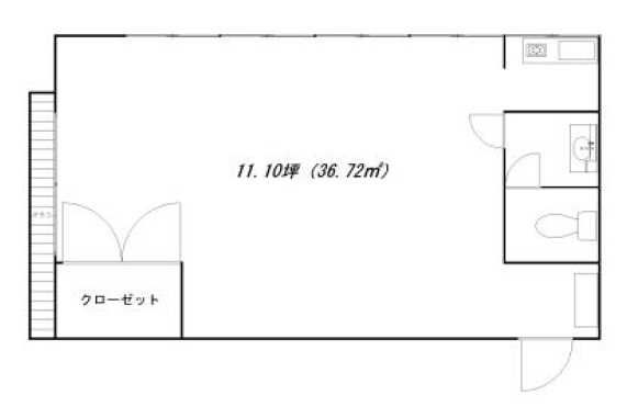
| 面積 | 36.72m²(11.1坪) |
| 築年月 | 1958/12 |
| 敷金 | - |
|---|---|
| 礼金 | 2ヶ月 |
| 保証金 | 5ヶ月 |
| 建物構造 | 鉄筋コンクリート造 |
| 所在階 | 4階/5階建 |
| 取引態様 | 一般媒介 |
| 更新 | 可 2年定期借家 更新料:再契約手数料 新賃料1.0ヶ月 |
| 敷引・償却 | 1ヶ月 |
|---|---|
| 火災保険 | 要加入- 保険期間2年 |
| 保証会社 | |
| 駐車場 | |
| 諸費用 | ※賃料・共益費の金額は税込です。 ※こちらの物件は仲介手数料が賃料の1ヶ月(税込)かかります |
| 引渡時期 | 即時 |
特色
■現況引き渡しです、内装等は借主様負担、■店舗利用は時間制限有 22時まで 【出入りは可能です】、トイレ、エレベータ、光ファイバー、エアコン【残置物】、2F以上、ミニキッチン【残置物】、駅至近、大通り面、給湯、飲食不可 、保証会社利用必須、エレベーターは中間階で止まるタイプです【階段を上るか降りるかになります】■同業不可 ネイル・フェイシャルエステは入居有り■マツエクサロンの居抜きです■保証会社の承認後に、貸主様と面談がございます
コメント
【貸事務所 貸店舗 新宿3丁目】
【フェイシャルエステ・ネイルは同業種があるため不可・マッサージ店等は相談】
■駅徒歩2分!■【詳細】
●業種ご相談ください。●都営新宿線「新宿三丁目」駅徒歩4分、新宿通り沿いの物件です。新宿駅徒歩圏内でアクセス良好です。
●1階にはコンビニが入店していますので、便利且つ目印にもなります。
周辺地図
位置情報に関するご注意:現在位置情報は精査中の為、正確ではない場合があります。あくまで参考程度の情報となります。




































