|
事務所
[賃料]
[管理費等]
-
KDX新宿ビル
|
||||
|---|---|---|---|---|
| 所在地 | 沿線/駅 バス徒歩 |
面積 坪/坪賃料 |
敷金/保証金 礼金 |
築年月 |
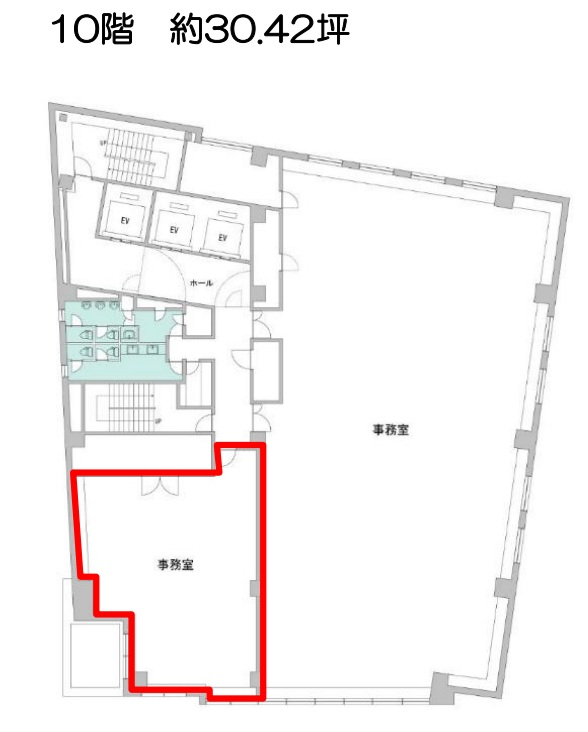
| 新宿区西新宿3丁目 | 山手線/新宿 徒歩9分 |
100.59m² 30.42坪/- |
12ヶ月/- - |
1993/01 |

| 物件番号 | 20581 | ||
|---|---|---|---|
| 交通 | 山手線 新宿まで 徒歩9分
都営新宿線 新宿まで 徒歩5分 都営大江戸線 都庁前まで 徒歩7分 |
||
| 建物構造 | 鉄骨鉄筋コンクリート造 | 階/階建 | 10階/11階建 |
| 駐車場 | |||
| 保険 | 要 2年 | 敷引・償却 | - |
| 契約期間 | 更新料 | ||
| 引渡時期 | 2026/07上旬 | 現況 | 使用中 |
| 取引態様 | 仲介 | 仲介手数料 | 1ヶ月 |
| 諸費用 | ※賃料・共益費の金額は税込です。 - ※こちらの物件は仲介手数料が賃料の1ヶ月(税込)かかります - |
||
| フリーレント | |||
| 保証会社詳細 | |||
| 特色 | ■事務所利用のみ、賃料等の詳細はお問い合わせください ■OAフロア、光ケーブル引き込み可、機械警備、男女別トイレ、ミニキッチン、飲食不可、大通り面、駅至近、エレベータ、天井高2600㎜、タイルカーペット■エアコン【セントラル空調 コアタイム8時~18時】■夜間オートロック【エントランス7時~22時解放、正面階段5時~24時開放】■機械式駐車場有【要空き確認】、2F以上 | ||
| 情報更新日 | 2026年05月05日 | 次回更新予定日 | 2026年06月02日 |
|
地図を右クリックでルート検索が可能です。
|