物件番号「14924」をお伝えください。
| 賃料 | 18.7万円 |
| 管理費等 | 16,500円 |
| 敷金/保証金 | -/4ヶ月 |
| 礼金 | 2ヶ月 |
| めやす賃料 | |
| フリーレント | |
| タイプ | 店舗(一部) |
| 所在地 | |
| 交通 | 山手線 恵比寿まで 徒歩7分
日比谷線 広尾まで 徒歩13分 東横線 代官山まで 徒歩17分 |
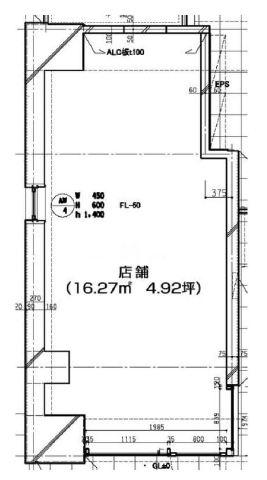
| 面積 | 16.27m² |
| 坪/坪賃料 | 4.92坪/37,995円 |
| 建物構造 | 鉄筋コンクリート造 |
| 階/階建 | 1階/8階建 |
| 駐車場 | 無 |
| 保険 | 要 2年 |
| 敷引・償却 | 1ヶ月 |
| 契約期間 | 3年 |
| 更新料 | 新賃料1.00ヶ月 |
| 引渡時期 | 相談 |
| 現況 | 空室 |
| 取引態様 | 仲介 |
| 仲介手数料 | 1ヶ月 |
| 築年月 | 2014/05 |
| 保証会社詳細 | |
| 諸費用 | ※賃料・共益費の金額は税込です。 - ※こちらの物件は仲介手数料が賃料の1ヶ月(税込)かかります - |
| 特色 | 大通り面、光ファイバー、エレベータ、飲食不可、エアコン、保証会社利用必須 ■天井高2.5m以上 ■スケルトン ■宅配BOX ■エアコンは残地物 |
| コメント | 【貸店舗 貸事務所 恵比寿】 【即内見可能!!】■好立地!【物件詳細】 ○大通り沿い路面、視認性かなり高いです! ○美容・物販店に最適です。 ○業種・諸条件等お気軽にご相談下さい。 |
| 情報更新日 | 2026年03月30日 |
| 次回更新予定日 | 2026年04月13日 |
物件番号「14924」をお伝えください。