物件番号「20432」をお伝えください。
| 賃料 | 17.05万円 |
| 管理費等 | 11,000円 |
| 敷金/保証金 | -/5ヶ月 |
| 礼金 | 2ヶ月 |
| めやす賃料 | |
| フリーレント | |
| タイプ | 事務所 |
| 所在地 | |
| 交通 | 都営新宿線 新宿三丁目まで 徒歩4分
丸ノ内線 新宿御苑前まで 徒歩4分 総武中央線 新宿まで 徒歩10分 |
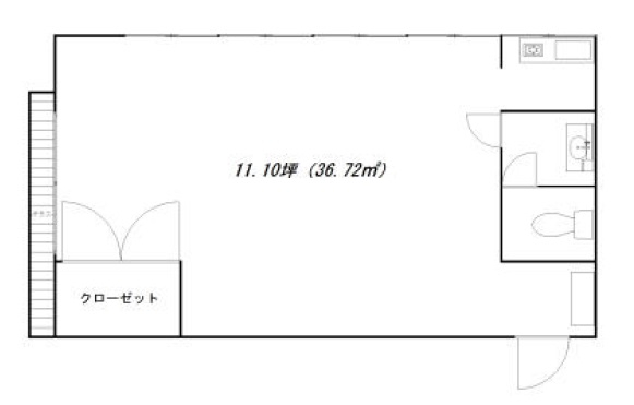
| 面積 | 36.72m² |
| 坪/坪賃料 | 11.1坪/15,349円 |
| 建物構造 | 鉄筋コンクリート造 |
| 階/階建 | 4階/5階建 |
| 駐車場 | |
| 保険 | 要 2年 |
| 敷引・償却 | 1ヶ月 |
| 契約期間 | 2年定期借家 |
| 更新料 | 再契約手数料 新賃料1.0ヶ月 |
| 引渡時期 | 即時 |
| 現況 | 空室 |
| 取引態様 | 一般媒介 |
| 仲介手数料 | 1ヶ月 |
| 築年月 | 1958/12 |
| 保証会社詳細 | |
| 諸費用 | ※賃料・共益費の金額は税込です。 - ※こちらの物件は仲介手数料が賃料の1ヶ月(税込)かかります - |
| 特色 | ■現況引き渡しです、内装等は借主様負担、■店舗利用は時間制限有 22時まで 【出入りは可能です】、トイレ、エレベータ、光ファイバー、エアコン【残置物】、2F以上、ミニキッチン【残置物】、駅至近、大通り面、給湯、飲食不可 、保証会社利用必須、エレベーターは中間階で止まるタイプです【階段を上るか降りるかになります】■同業不可 ネイル・フェイシャルエステは入居有り■マツエクサロンの居抜きです■保証会社の承認後に、貸主様と面談がございます |
| コメント | 【貸事務所 貸店舗 新宿3丁目】 【フェイシャルエステ・ネイルは同業種があるため不可・マッサージ店等は相談】 ■駅徒歩2分!■【詳細】 ●業種ご相談ください。○都営新宿線「新宿三丁目」駅徒歩4分、新宿通り沿いの物件です。新宿駅徒歩圏内でアクセス良好です。 ○1階にはコンビニが入店していますので、便利且つ目印にもなります。 |
| 情報更新日 | 2026年05月05日 |
| 次回更新予定日 | 2026年06月02日 |
物件番号「20432」をお伝えください。