物件番号「20478」をお伝えください。
| 賃料 | 22万円 |
| 管理費等 | 20,000円 |
| 敷金/保証金 | 2ヶ月/- |
| 礼金 | 1ヶ月 |
| めやす賃料 | |
| フリーレント | |
| タイプ | 店舗・事務所 |
| 所在地 | |
| 交通 | 総武中央線 四ツ谷まで 徒歩4分
丸ノ内線 四谷三丁目まで 徒歩9分 都営新宿線 曙橋まで 徒歩14分 |
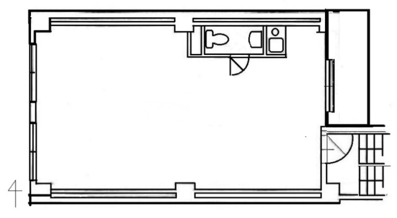
| 面積 | 60.78m² |
| 坪/坪賃料 | 18.38坪/11,965円 |
| 建物構造 | 鉄骨造 |
| 階/階建 | 2階/3階建 |
| 駐車場 | 要確認 |
| 保険 | 要 2年 |
| 敷引・償却 | 1ヶ月 |
| 契約期間 | 定期借家契約4年 |
| 更新料 | 再契約手数料 新賃料1.0ヶ月 |
| 引渡時期 | 即時 |
| 現況 | 空室 |
| 取引態様 | 一般媒介 |
| 仲介手数料 | 1ヶ月 |
| 築年月 | 1992/06 |
| 保証会社詳細 | |
| 諸費用 | ※賃料・共益費の金額は税込です。 - ※こちらの物件は仲介手数料が賃料の1ヶ月(税込)かかります - |
| 特色 | ■天井高さ約2.6m、トイレ、ミニキッチン、飲食不可、駅至近、エアコン、2F以上、光ファイバー、保証会社利用必須、都市ガス■2025年10月室内リフォーム済み【壁・床・天井・建具】■店舗相談【用途別で賃料加算+敷金4ヶ月~10ヶ月に変更【償却20%~50%】 契約期間等も相談■運営側が無人のレンタル系事業・民泊は不可 |
| コメント | 【貸店舗 貸事務所 四谷】 【エステ・整体・ネイル・スタジオ・コワーキング等相談可!】 ■新宿通り至近!■天井高! 【詳細】 ●JR四ツ谷駅から徒歩4分、新宿通りから少し入った立地です。 ●四谷三丁目駅からも徒歩圏内です。 ●レイアウトしやすい長方形の間取りです。 ●エレベーターがないため、搬出入の多い業種には不向きです。 ●業種ご相談ください。無人のレンタル事業は不可 |
| 情報更新日 | 2026年02月16日 |
| 次回更新予定日 | 2026年03月02日 |
物件番号「20478」をお伝えください。