物件番号「20651」をお伝えください。
| 賃料 | 114.268万円 |
| 管理費等 | - |
| 敷金/保証金 | -/6ヶ月 |
| 礼金 | - |
| めやす賃料 | |
| フリーレント | |
| タイプ | 店舗(一部) |
| 所在地 | |
| 交通 | 銀座線 表参道まで 徒歩2分
千代田線 表参道まで 徒歩2分 半蔵門線 表参道まで 徒歩2分 |
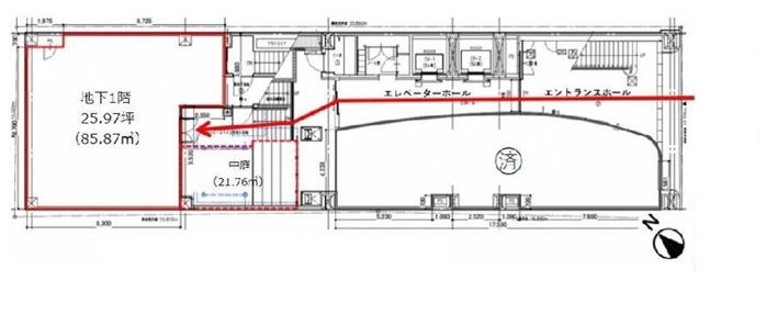
| 面積 | 85.87m² |
| 坪/坪賃料 | 25.97坪/43,990円 |
| 建物構造 | 鉄骨鉄筋コンクリート造 |
| 階/階建 | B1階/9階建 |
| 駐車場 | |
| 保険 | 要 2年 |
| 敷引・償却 | - |
| 契約期間 | 定期借家5年 |
| 更新料 | 再契約手数料 無し |
| 引渡時期 | 即時 |
| 現況 | 空室 |
| 取引態様 | 仲介 |
| 仲介手数料 | 1ヶ月 |
| 築年月 | 1981/03 |
| 保証会社詳細 | |
| 諸費用 | ※賃料・共益費の金額は税込です。 - ※こちらの物件は仲介手数料が賃料の1ヶ月(税込)かかります - |
| 特色 | 機械警備、エレベータ、軽飲食可、大通り面、駅至近、保証会社利用必須 ■専用中庭あり:21.76㎡ ■スケルトン ■長期フリーレント付き(共益費相当額は発生) |
| コメント | 【貸事務所 オフィス 表参道】 【内見可能!】 ■青山通り沿い!■軽飲食相談 【詳細】東京メトロ【表参道駅】徒歩2分、複数路線利用可能な立地です。 ●青山通り沿いのわかりやすい立地。物件自体エントランスを入った奥になります。 ●スケルトン引き渡し。 ●軽飲食、物販店などご相談可能です。 |
| 情報更新日 | 2026年03月27日 |
| 次回更新予定日 | 2026年04月10日 |
物件番号「20651」をお伝えください。