物件番号「2410」をお伝えください。
| 賃料 | 43.89万円 |
| 管理費等 | 41,800円 |
| 敷金/保証金 | -/263.34万円 |
| 礼金 | - |
| めやす賃料 | 498,988円 |
| フリーレント | |
| タイプ | 店舗・事務所 |
| 所在地 | |
| 交通 | 山手線 新宿まで 徒歩7分
総武中央線 大久保まで 徒歩4分 都営大江戸線 新宿西口まで 徒歩4分 |
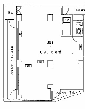
| 面積 | 87.53m² |
| 坪/坪賃料 | 26.47坪/16,576円 |
| 建物構造 | 鉄筋コンクリート造 |
| 階/階建 | 3階/9階建 |
| 駐車場 | |
| 保険 | 要 2年 |
| 敷引・償却 | 2ヶ月 |
| 契約期間 | 2年 |
| 更新料 | 新賃料1.00ヶ月 |
| 引渡時期 | 2026/02 下旬 |
| 現況 | 使用中 |
| 取引態様 | 仲介 |
| 仲介手数料 | 1ヶ月 |
| 築年月 | 1985/04 |
| 保証会社詳細 | |
| 諸費用 | ※こちらの物件は仲介手数料が賃料の1ヶ月(税込)かかります - ※賃料・共益費の金額は税込です。 - |
| 特色 | 光ファイバー、エレベータ、エアコン、24時間使用可、2F以上、トイレ、飲食不可、保証会社利用必須、ミニキッチン、駅至近 ■天井高:2370MM ■電気水道代別途(一括受電のため貸主より請求) ■現テナント:ネイル、アイラッシュ ■室内写真はイメージです |
| コメント | 【貸事務所 貸店舗 新宿】 【駅近!!】 ■店舗相談可(ネイル、エステ、撮影スタジオ等】 ■白基調の綺麗な室内!■民泊・レンタル系不可 [物件詳細] ●小滝橋通り橋通りから少し入ってますが人通り多し! ●エントランスも鏡張りで豪華です ●業種、用途ご相談に応じます。 |
| 情報更新日 | 2026年02月03日 |
| 次回更新予定日 | 2026年03月03日 |
物件番号「2410」をお伝えください。