飯田橋ハイタウン
| 賃料 : ¥192,500 | 面積 : 49.2m2 | 築年月 : 1978/08 |
| 住所 : 新宿区下宮比町 | 交通 :総武中央線 飯田橋より バス3分 | 敷金(保証金) :3ヶ月( ) |
| 礼金 :1ヶ月 | 償却 : | 管理費 :¥38,700 |
| 賃料 : ¥192,500 | 面積 : 49.2m2 | 築年月 : 1978/08 |
| 住所 : 新宿区下宮比町 | 交通 :総武中央線 飯田橋より バス3分 | 敷金(保証金) :3ヶ月( ) |
| 礼金 :1ヶ月 | 償却 : | 管理費 :¥38,700 |
【貸事務所 オフィス 飯田橋】
【士業やスタートアップオフィスにおすすめ】 ■登記可能 ■グレード感のある分譲マンションの一室。
【詳細】
●)吹き抜けロビーで打ち合わせもできます
●2015年大規模修繕済み!■夜間オートロック【8時〜20時開放】■貸会議室あり【有料】
| 物件番号 | 20550 | ||
|---|---|---|---|
| 交通 | 総武中央線 飯田橋まで バス3分 都営大江戸線 牛込神楽坂まで バス9分 東西線 神楽坂まで バス8分 |
バス停最寄施設 | |
| 向き | 階/階建 | 3階/11階建 | |
| 保証金 | 敷引 | ||
| 契約期間 | 2年 | 取引態様 | 一般媒介 |
| 仲介手数料 | ※こちらの物件は仲介手数料が賃料の1ヶ月(税込)かかります | 消費税 | ※賃料・共益費の金額は税込です。 |
| 更新 | 可 | 更新料 | 新賃料1.00ヶ月 |
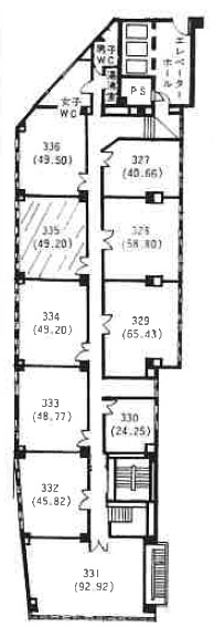
| 間取詳細 | 火災保険 | 有 | |
| 特色 | ミニキッチン、トイレ、駅至近、エアコン、2F以上、エレベータ(3基)、光ファイバー、給湯、24時間使用可、夜間オートロック、飲食不可、保証会社利用必須 ●管理費非課税 ●ケーブルテレビ導入(別途契約) ●コインランドリーあり ●駐車場:有料月極・時間貸し ●ロビー(64u) 応接用のいすやテーブルあり | ||
※掲載されている物件データが現状と異なる場合は現状を優先します