MIB四谷ビル
| 賃料 : ¥660,000 | 面積 : 129m2 | 築年月 : 1987/09 |
| 住所 : 新宿区荒木町 | 交通 :丸ノ内線 四谷三丁目より 徒歩6分 | 敷金(保証金) :2ヶ月( ) |
| 礼金 :1.1ヶ月 | 償却 :1ヶ月 | 管理費 :¥44,000 |
| 賃料 : ¥660,000 | 面積 : 129m2 | 築年月 : 1987/09 |
| 住所 : 新宿区荒木町 | 交通 :丸ノ内線 四谷三丁目より 徒歩6分 | 敷金(保証金) :2ヶ月( ) |
| 礼金 :1.1ヶ月 | 償却 :1ヶ月 | 管理費 :¥44,000 |
【貸事務所 四谷三丁目 曙橋】
【全面ガラス張りの洒落なビルです】 ■外苑東通りから少し入りますので静かです■人気の男女別トイレ
【詳細】
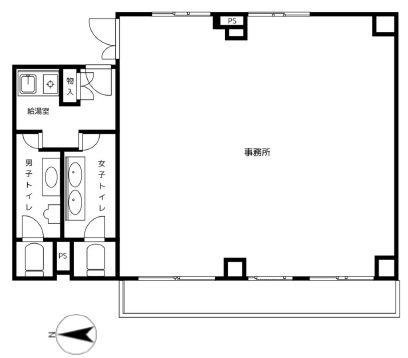
●正方形の使いやすい間取りです
●駐車場有
| 物件番号 | 20576 | ||
|---|---|---|---|
| 交通 | 丸ノ内線 四谷三丁目まで 徒歩6分 都営新宿線 曙橋まで 徒歩3分 総武中央線 四ツ谷まで 徒歩14分 |
バス停最寄施設 | |
| 向き | 階/階建 | 3階/5階建 | |
| 保証金 | 敷引 | 1ヶ月 | |
| 契約期間 | 2年 | 取引態様 | 仲介 |
| 仲介手数料 | ※賃料・共益費の金額は税込です。 | 消費税 | ※こちらの物件は仲介手数料が賃料の1ヶ月(税込)かかります |
| 更新 | 更新料 | 新賃料1.ヶ月+事務手数料0.2ヶ月 | |
| 間取詳細 | 火災保険 | 要加入 | |
| 特色 | エレベータ、機械警備、トイレ、男女別トイレ、ミニキッチン、駅至近、エアコン、2F以上、保証会社利用必須、オートロック■機械式駐車場ございます【要空き確認】 大型車55000円 中型車44000円■傾斜地にあり入口が2か所ございます。 | ||
※掲載されている物件データが現状と異なる場合は現状を優先します
地図
|
|
位置情報に関するご注意:現在位置情報は精査中の為、正確ではない場合があります。あくまで参考程度の情報となります。