新宿から原宿・渋谷に特化した事業用物件専門の不動産。物件紹介から事業コンサルまでサポートします!
新宿の事務所はエンジンテラス
企業情報
店舗へのアクセス
お問い合わせ
業種別で探す
新着物件から探す
こだわりで探す
用途から探す
駅から探す
キーワードで探す
トップページへ
>
事業用物件一覧へ
> 物件情報
貸事務所・貸店舗・代々木上原物件情報
沿線別一覧
間取一覧
写真一覧
地図一覧
地域一覧
¥352,000
¥385,000
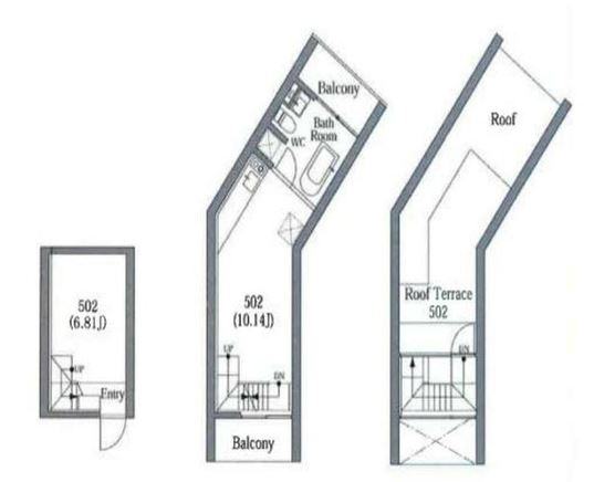
37.94m
2
( 11.47坪 )
63.49m
2
( 19.2坪 )